For Sale 4 Bed House - Detached 

Shelvers Way, Tadworth £1,150,000

Property Features

Location:
Shelvers Way, Tadworth, Surrey, KT20 5QF
Reception Rooms: 3
Bedrooms: 4
Bathrooms: 3
Area: 1826 sqft

Contact Agent

Banstead
31 High Street,
Banstead
Surrey
SM7 2NH
Tel: 01737 370022
banstead@williamsharlow.co.uk

About the Property

SHOW HOME OPEN FRIDAY – MONDAY INCLUSIVE 10AM – 5PM

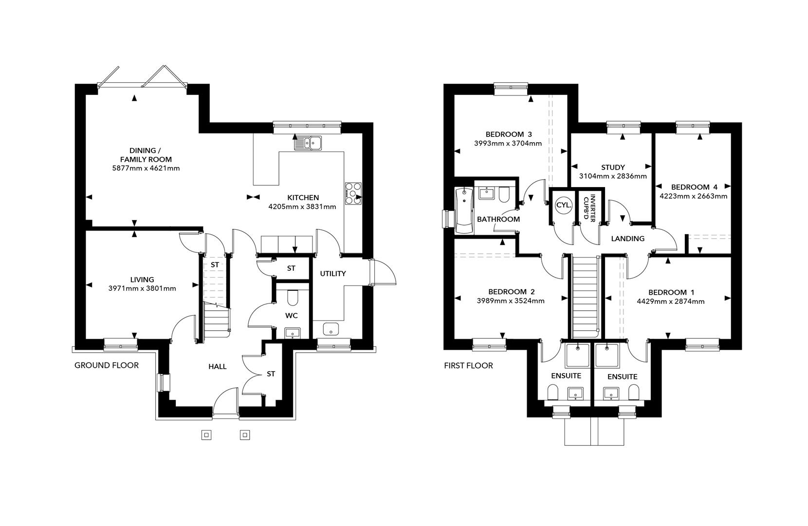
The Haven is a brand new four bedroom detached house with accommodation of 1826 square foot. The ground floor offers superb modern family living with an open plan concept plus a separate reception room. As well as four bedrooms to the first floor there is also a study ideal for the home worker.

Silver Birches is a stunning collection of just five beautifully designed 3 & 4-bedroom houses by Devine Homes of Reigate in an exclusive location just off Shelvers Way, Tadworth near to Epsom Racecourse in Surrey.

The development is less than half a mile from the A217 Brighton Road which takes you north to join the A24 and A3 into Central London or south to access the M25 at Junction 8 (Reigate)

Every home at Silver Birches has been individually designed and beautifully finished with a luxury specification. From stunning designer kitchens through to stylish family bathroom suites: quality, innovation and tradition combine to deliver outstanding spaces ideally suited to modern living. All offer EPC A ratings

Please contact us know for further information or to arrange an appointment for the open event please contact us

You may download a copy of the full brochure from this advertisement

Please note the images used within this advertisement are general images and do not show the plot in question they are a general illustration of a recent Devine Home finish

    Video Tour

    Property Photos

    Property Details

    THE PROPERTY

    This four bedroom home features an impressive wide entrance hall on the ground floor and a generous kitchen/dining/family room plus a large utility and a separate living room. To the first floor there are four generous bedrooms, two with ensuite, family bathroom and separate study.

    SPECIFICATIONS

    KITCHEN
    • Individually designed in frame painted kitchens
    • Silestone worktops with upstand and splashback
    • Integrated oven and separate combination oven
    • Quooker Boiling Water tap (applies to selected plots)
    • Black glass induction hob
    • Integrated fridge and separate integrated freezer
    • Integrated dishwasher
    • Wine cooler
    • Karndean flooring

    DOORS & INTERNAL JOINERY
    • Oak inlay internal doors with brushed chrome ironmongery
    • Oak handrail with white painted newel posts & spindles (Full oak to plots 2 and 4)
    • Skirting and architrave - double grooved and chamfered

    QUALITY BATHROOMS
    • Contemporary bathroom suites
    • Vanity units below basins
    • Thermostatically controlled Aqualisa showers with concealed valves
    • Bathroom part tiled
    • Shower areas fully tiled
    • Flooring – Ceramic tiling or Karndean
    • Mirrors as shown on bathroom layouts

    ELECTRICAL & LIGHTING
    • LED downlighters to kitchen, bathroom and en-suite
    • LED lighting strips under kitchen units
    • Shaver point in bathroom / en-suite
    • Brushed chrome electrical fittings
    • Light in garage
    • Double socket in garage
    • External lighting to front and rear garden and garage
    • Electric vehicle charge point (EVCP)
    • Solar PV panels

    MAINTENANCE CHARGES

    Approximately £1,400 per annum

    COUNCIL TAX

    Reigate & Banstead - BAND F Estimated.

    Floorplans

    Location Map

    Enquire / Book Viewing

    Contact Banstead
    31 High Street,
    Banstead
    Surrey
    SM7 2NH
    Tel: 01737 370022
    banstead@williamsharlow.co.uk