For Sale 4 Bed House - Detached 

Upland Road, South Sutton Guide Price £1,350,000

Property Features

Location:
Upland Road, South Sutton, SM2 5JE
Reception Rooms: 3
Bedrooms: 4
Bathrooms: 3

Contact Agent

Cheam
5 The Broadway
Cheam
Surrey
SM3 8BH
Tel: 020 8642 5316
cheam@williamsharlow.co.uk

About the Property

Williams Harlow Cheam – A large nearly new build house in a select South Sutton road offering exceptional reception space, the kitchen family room you have always dreamed of and a number of luxury bathrooms and bedrooms. Offered without an onward chain and ready to move into.

  • Four Bedrooms
  • Three Reception Rooms
  • Detached
  • Driveway
  • West Facing Rear Garden
  • No Onward Chain
  • Morden House
  • Luxury Interior
  • Close to Harris, Barrow Hedges, Seaton House Schools
  • Walking Distance to Sutton Town Centre

Property Photos

Property Details

The Property

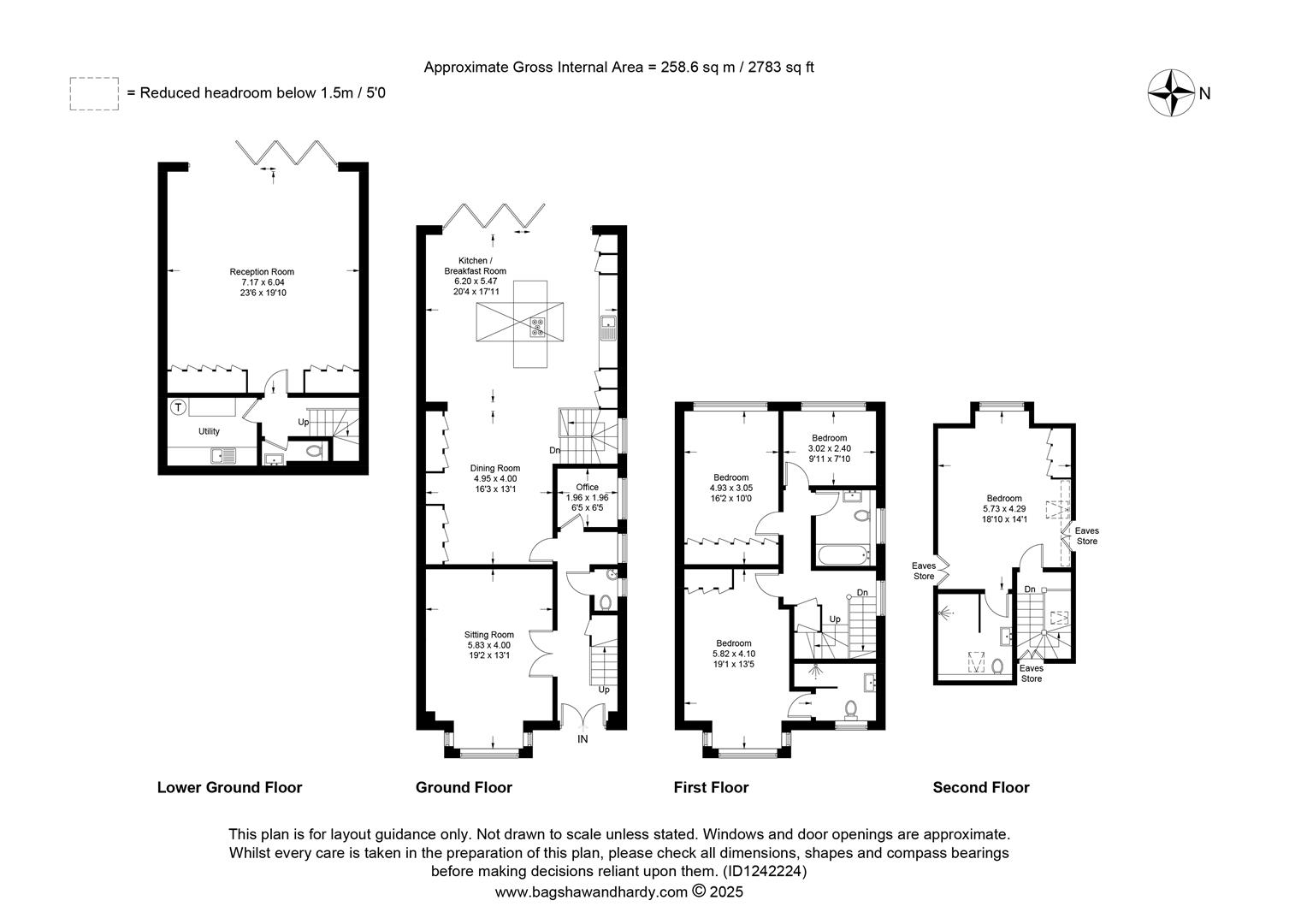
Once inside, the house is characterised by the space and quality of finish. The large hallway provides access to all ground floor rooms including the lounge, cloakroom, study and kitchen family room. Although the whole ground floor offers plenty of functionality, the main attraction is the kitchen/dining family room. The island, bi-fold doors, sky lights, fitted appliances and large tiles make this a room to impress. The lower ground floor, accessed via steps down from the kitchen, provides a superbly sized reception room. The upper floors include four bedrooms and three bathrooms. The decor is neutral, modern and slick. Being a new build the energy efficiency and running costs are excellent. Comprising off four bedrooms, three bathrooms, two reception rooms, kitchen family room, office, utility room and two cloakrooms.

Outdoor Space

Westerly rear garden measuring 74ft comprising of patio, lawn and hard standing for shed. Handsome steps lead down to the basement level. The frontage is particularly handsome and includes a large driveway.

The Area

Upland Road is a quiet road of mostly large detached houses. The tree lined, grass verged paths and wide road create an attractive backdrop for this handsome property. The surrounding architecture is mostly 1930s with some other local roads offering older period property; this new build has been designed to blend in and the striking exterior is impressive.

South Sutton is sought after and affluent. With a community feel the area and road are pleasant to live in and the convenience of being a short walk from shops is a major benefit. Sutton town centre has a vast array of shops and restaurants as well as a train station. Carshalton Beeches has a smaller offering but as a convenience is perfect. Local Schools include Barrow Hedges, Seaton House, Sutton Grammar and Sutton High.
Williams Harlow specialise in the very best property and this house is no different.

Why You Should View

A great road which ideal for Harris, Seaton House and Barrow Hedges schools, a modern spacious house with luxury within every inch; are just some of the reasons why you should prioritise this house within your search.

Features

Four Bedrooms – Three Bathrooms – Three Reception Rooms – Driveway – Luxury Kitchen Family Room – West Facing Rear Garden – Sought After Road - Under Floor Heating - Water Softener in the utility room - Solar Panels

Benefits

No Onward Chain – Close To Seaton House – Close To Barrow Hedges – Close To Harris Academy – Walking Distance Of Shops – Walking Distance From Sutton Town Centre

Local Schools

The Avenue – Mixed State – Ages 3 – 11
Barrow Hedges – Mixed State – Ages 3 – 11
Harris – Mixed Academy – Ages 11 – 19
Seaton House – Mixed Fee Paying – 2 – 11
Devonshire – Mixed – 3 – 11

Local Transport

Sutton Train Station:
Trains - Southern London Victoria/Bridge (From Sutton circa 32 mins) to Epsom (Circa 10 mins) and Horsham (Circa 47 mins). Thames Link Sutton to St Albans via City (Circa 44 Mins).
Buses -
80 - Belmont via Sutton to Morden Tube.
164 - Sutton to Wimbledon
280 - St Georges Tooting to Belmont via Sutton
N44 - Trafalgar Sq. to Sutton
S1 - Banstead to Mitcham via St Holier Hospital
S3 - Belmont to New Malden via Sutton

EPC AND COUNCIL TAX

B AND G

Why Williams Harlow

We offer specific and professional expertise within this area. Taking your sale and search seriously, our aim is to provide the very best service with honesty and integrity.

Floorplans

Energy Performance Certificates

Location Map

Enquire / Book Viewing

Contact Cheam
5 The Broadway
Cheam
Surrey
SM3 8BH
Tel: 020 8642 5316
cheam@williamsharlow.co.uk