For Sale 5 Bed House - Detached 

Sandy Lane, South Cheam, SM2 Offers In Excess Of £1,350,000

Property Features

Location:
Sandy Lane, South Cheam, SM2 7ER
Reception Rooms: 4
Bedrooms: 5
Bathrooms: 3

Contact Agent

Cheam
5 The Broadway
Cheam
Surrey
SM3 8BH
Tel: 020 8642 5316
cheam@williamsharlow.co.uk

About the Property

Williams Harlow Cheam – A large detached house in the heart of South Cheam and within a short walk from Cheam and Belmont Village high streets. Including a double garage, double bedrooms, multiple bathrooms and reception rooms; the house is very suitable for a growing family. Ready to view now.

  • Five Bedrooms
  • Four Reception Rooms
  • Double Garage
  • Three Bathrooms
  • Parking
  • Walk to Nonsuch and Avenue Schools
  • Detached
  • Sought After South Cheam Road
  • Circa 2500 Sq Ft
  • Separate Utility Room

Property Photos

Property Details

The Property

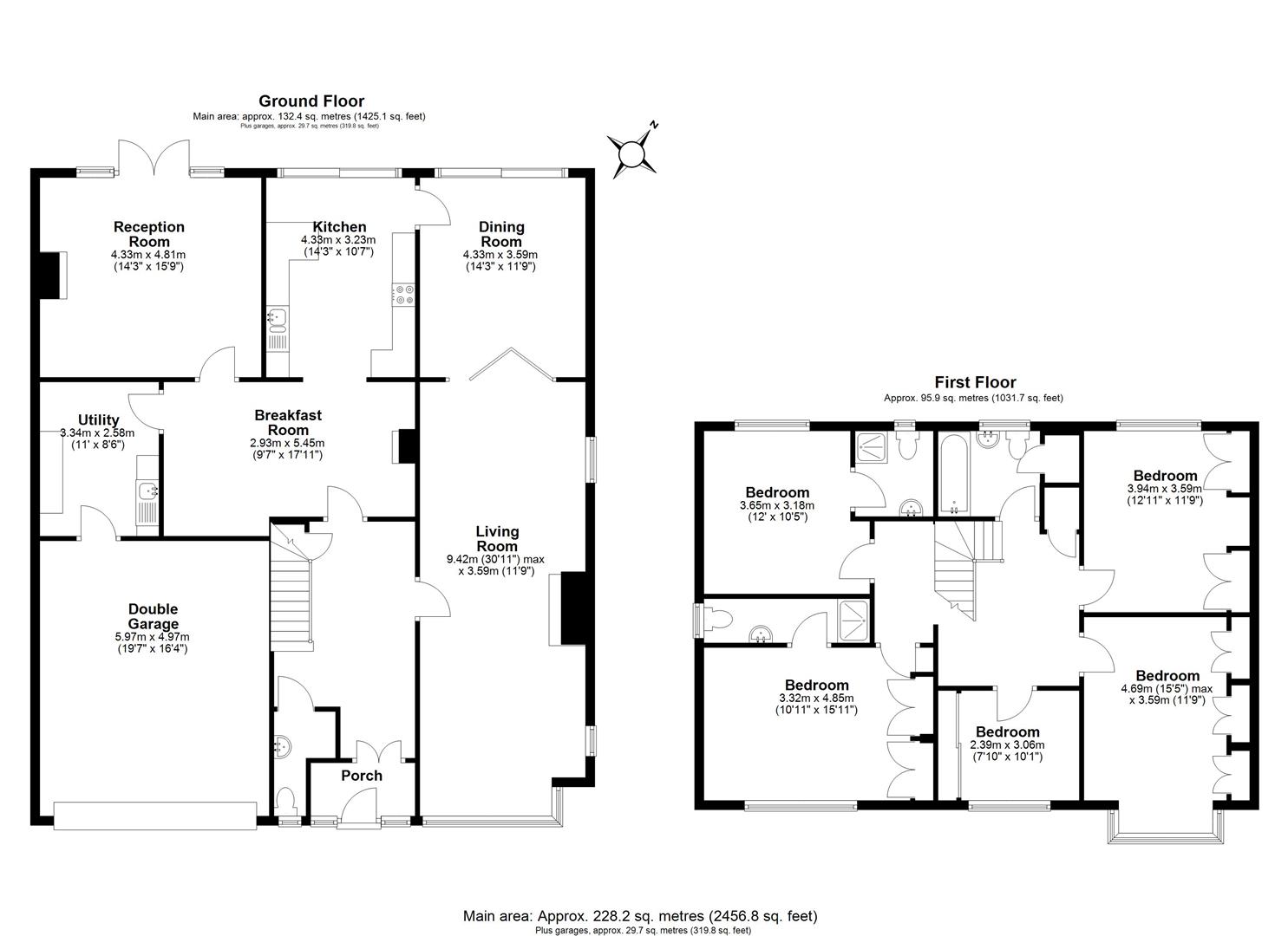
Measuring just under 2500 sq ft, this large property is detached with five double bedrooms (four of which provide built in wardrobes). Two bedrooms offer en-suites with a third family bathroom on offer. With a central hallway the ground floor rooms are flowing and easily accessed. The layout affords the possibility of easily knocking rooms together to create larger rooms should one wish. Currently the ground floor consists of four reception rooms, kitchen and separate utility room. The front facing double garage is integrated with internal access.

External Plot

A driveway to the front of the property and a private garden to the rear. N.B. The Sq rear garden measures 52' x 50'.

Why You Should Buy

With lots of future potential without the need for extending, this house is suitably spacious. You will also find the location agreeable, its in one of the best South Cheam roads upon which the residents clearly attend to their property.

Local Area

Cheam Village is superb and if you haven’t visited, you must. It’s very much like lots of other Surrey towns in that it offers excellent commuting links, a nice high street with lots of independent shops and crafts as well as the national chains, excellent schooling and green open spaces. However it’s the general relaxed and peaceful neighbourhood which allows for you to take evening walks without a second thought and the community where people feel invested. Within a very short walk, you will find Cheam train station, Nuffield fitness centre and a choice of tennis clubs. Again within 5 mins and you will be ordering a flat white in one of the various coffee shops on the high street. From Cheam train station, you can journey to London Victoria or London Bridge in around 35 mins. Surrounding towns include Banstead, Sutton, Epsom and Carshalton. Road networks include the M25, A3 and A217. Gatwick and Heathrow are easily drivable in circa 40 mins and with the excellent road and rail networks the South coast is readily accessible. South Cheam also indulges the sporting types with golf, tennis, rugby and cricket. Being so close to Epsom, it’s great for horse owners also.

Local Transport

Cheam Train Station - London Victoria and London Bridge - Southern Service - Circa 36 mins. Epsom - Circa 7 mins.
Bus Routes from Cheam Village -
151 - Wallington to Worcester Park.
213 - Kingston Tiffin Sch to Sutton.
SL7 - West Croydon to Heathrow
X26 - West Croydon to Heathrow Via Kingston

Local Schools

Sutton High - Fee Paying - Ages 3 - 18
Cheam High - State - 11 - 19
Cuddington Croft - State - 3 - 11
Avenue - State - 3 - 11
Nonsuch Girls - Grammar - 11 - 19
Glyn - Boys State - 11 – 18

Benefits

Between Two Village Highstreets - Close To Nonsuch, Avenue and Harris Schools - Receptive To A Larger Family Or Staying Guests - Private Rear Garden - Sought After Location

Features

Five Double Bedrooms - Detached - Parking - Garage - Three Bathrooms - Four Reception Rooms - Sperate Utility Room - Maintained Homely Décor -

EPC And Council Tax

D AND G

Why Williams Harlow

We offer specific and professional expertise within this area. Taking your sale and search seriously, our aim is to provide the very best service with honesty and integrity.

Floorplans

Energy Performance Certificates

Location Map

Enquire / Book Viewing

Contact Cheam
5 The Broadway
Cheam
Surrey
SM3 8BH
Tel: 020 8642 5316
cheam@williamsharlow.co.uk